Thanks for viewing this Preferred Property below. If you have any questions or would like to schedule a viewing, please feel free to call our office at 780-701-2626 and ask for Anu Khullar or John Carter. Toll free is 1-877-417-2626 or email by clicking on the envelope logo on the left of the photos on the listing.
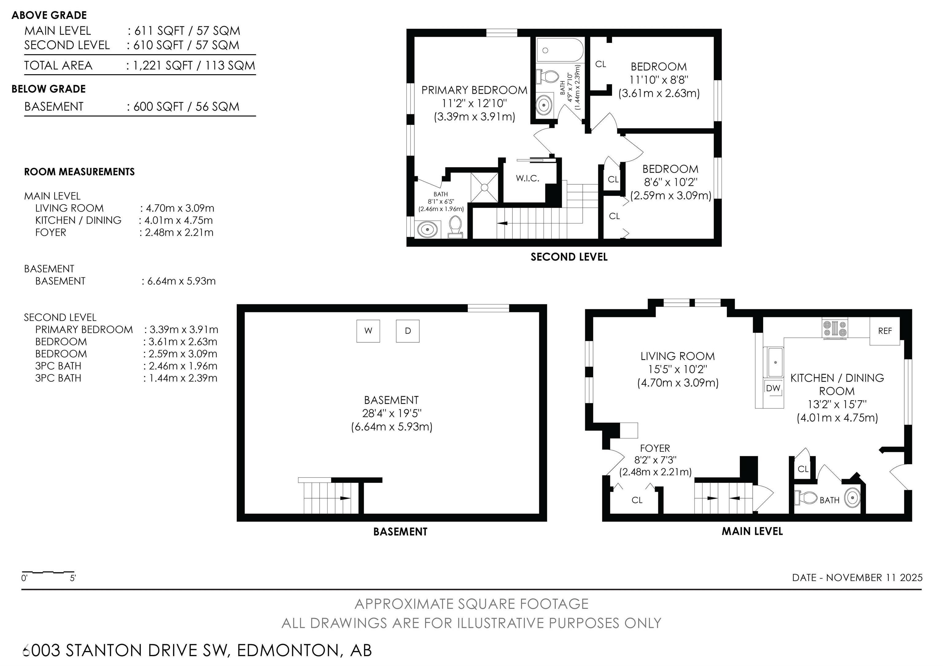
LAKE ACCESS with a Southeast facing Corner lot and oversized heated garage in Summerside!!! From the moment you enter this 1221 square foot, 3 bedroom, 2-1/2 bathroom home, you start noticing the little things. TONS of oversized windows filling the living space and kitchen with natural light, new Vinyl flooring, and the open concept you have been looking for. When it gets too warm, your Central A/C will keep you nice and cool. In the primary retreat, you will find a walkin closet and full 3pc ensuite. The AMAZING back yard space is filled with Stamped concrete walkways, dedicated fire gathering place and decorative gate. The Oversized 9-1/2' height, 22'x22', HEATED & INSULATED. 2 car garage is immaculate and even has a 5' x 18' attic space AND comes with a SNOW BLOWER. This rare opportunity in Summerside has it all, and is ready for your family to celebrate this Christmas in.
This property is listed by MaxWell Devonshire Realty and provided here courtesy of
Anu Khullar.
For more information or to schedule a viewing please contact Anu Khullar.